U gebruikt een verouderde internetbrowser.
We raden u aan om de meest recente internetbrowser te installeren voor de beste weergave van deze website.
Een internetbrowser die up to date is, staat ook garant voor veilig surfen.

Fritz Vinckelaan-Breendonklaan
Fritz Vinckelaan 102, 8450 Bredene
verkocht

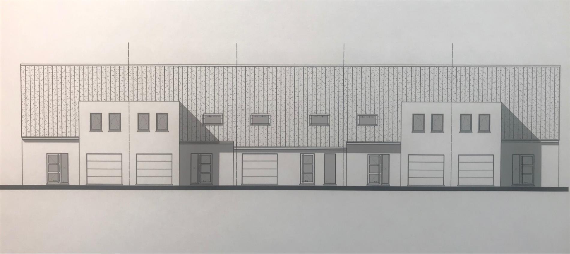
MOOIE KLEINSCHALIGE WOONVERKAVELING OP CENTRALE LIGGING BREDENE

Omschrijving

Op zeer centrale ligging te Bredene zal deze kleinschalige verkaveling worden opgericht bestaande uit 8 woningen met garage en tuin waarvan 3 rijwoningen, 4 half open bebouwingen en 1 alleenstaande woning.

Iedere woning wordt traditioneel gebouwd en afgewerkt met kwaliteitsvolle materialen met een E-peil van 40 met zonnepanelen .

Zowel rijwoning, half open bebouwing als alleenstaande woning.

vroege beslissers hebben nog grote inspraak in indeling en afwerking van de woning!

Wees er snel bij !

Referentie Model Type Opp. Tuin Slpk. Prijs  
N133/LOT1 Half open bebouwing Woning 140 m² Ja 4 Verkocht Verkocht
N133/LOT5 Half open bebouwing Woning 140 m² Ja 4 Verkocht Verkocht
N133/LOT6 Half open bebouwing Woning 140 m² Ja 4 Verkocht Verkocht
N133/LOT7 Half open bebouwing Woning 140 m² Ja 4 Verkocht Verkocht
N133/LOT2 Rijwoning Woning 140 m² Ja 4 Verkocht Verkocht
N133/LOT3 Rijwoning Woning 140 m² Ja 4 Verkocht Verkocht
N133/LOT4 Rijwoning Woning 140 m² Ja 4 Verkocht Verkocht
N133/LOT8 Alleenstaande bebouwing Woning 170 m² Ja 4 Verkocht Verkocht

Interesse in dit pand?

Wenst u meer informatie over dit pand of wenst u een bezoekmoment in te plannen? Contacteer ons telefonisch via 059/43.43.00 of via onderstaand formulier.


U moet akkoord gaan met het privacybeleid van deze website
* Verplicht in te vullen

Vastgoed Vanhoye zoekt voor jou

Niet gevonden wat je zocht? Schrijf je dan vrijblijvend in en blijf op de hoogte van ons meest recente aanbod.
Schrijf je in
Terug naar boven
Vastgoed Vanhoye