U gebruikt een verouderde internetbrowser.
We raden u aan om de meest recente internetbrowser te installeren voor de beste weergave van deze website.
Een internetbrowser die up to date is, staat ook garant voor veilig surfen.

Helaas, dit pand is verkocht

8450 Bredene

Bekijk op kaart

MODERNE NIEUWBOUW WONING PAL IN CENTRUM BREDENE DORP

Omschrijving

In het centrum van Bredene dorp richten we een kleinschalige verkaveling op met 13 woningen.

Lot 2 is een gesloten bebouwing bestaande uit twee bouwlagen aan voorzijde en één aan achterzijde, dit in combinatie met een bouwdiepte van 14,5 meter schept een woonoppervlakte !

Wij zijn ondertussen gestart met de grondwerken en bieden u op deze manier nog mogelijkheid tot keuze van materialen bij snelle beslissers !

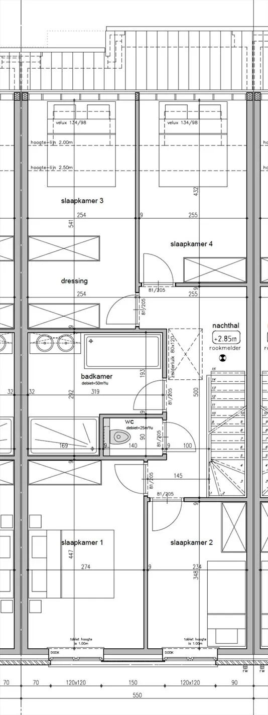
Wij voorzien in principe een inkomhal met apart toilet, ruime living met grote raampartijen die rechtstreeks uitkomen op de Zuid-Oost gerichte tuin, ingerichte keuken, bergplaats en garage op het gelijkvloers.
Op het eerste verdiep zijn in principe 4 slaapkamers en een badkamer voorzien.

Deze woning beschikt eveneens nog over een bruikbare zolder die omvormbaar is tot een slaapkamer mits meerprijs.

Deze woning zal energiezuinig en met hernieuwbare energie worden opgericht ! Zonnepanelen zijn eveneens inbegrepen in de prijs !

Alle info, plannen, lastenboek, .. via VASTGOED VANHOYE.BE OF 059/43.43.00

Vraag jouw bezoek aan

Vastgoed Vanhoye zoekt voor jou

Niet gevonden wat je zocht? Schrijf je dan vrijblijvend in en blijf op de hoogte van ons meest recente aanbod.
Schrijf je in
Terug naar boven
Vastgoed Vanhoye